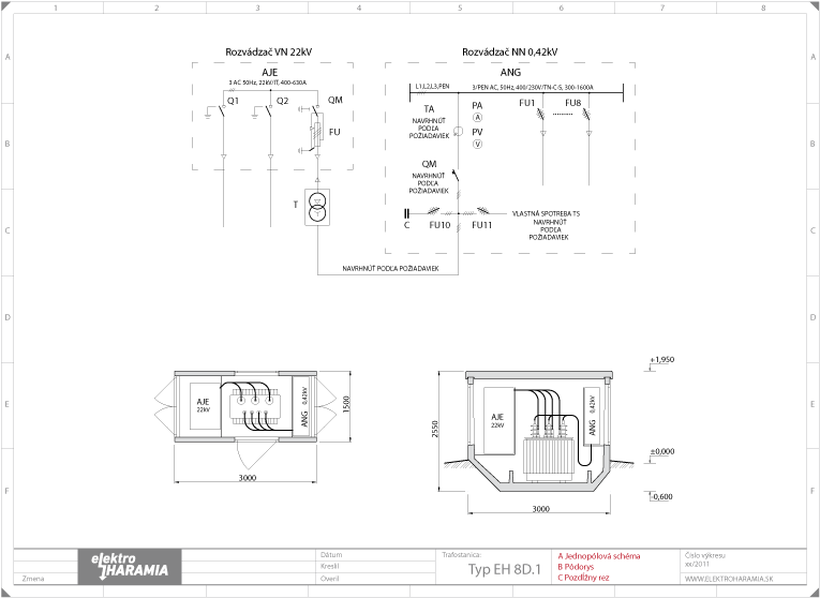
Trafostanica EH8D.1
Nízka, kompaktná, polozapustená transformačná stanica obsluhovateľná z vonkajšej strany. Železobetónový skelet.
Montáž alebo výmenu prístrojovej časti trafostanice je možné realizovať po zdvihnutí odnímateľnej strechy autožeriavom.

Základné technické údaje
Vonkajšia dĺžka: 3.000 mm
Vonkajšia šírka: 1.500 mm
Výška (od okolitého terénu): cca 1.950 mm
Hĺbka zapustenia do zeme: 600 mm
Celková výška: 2.550 mm
Celková váha (bez prístrojov): cca 7.5 t
Vnútorný objem: cca 11.7 m3
Zastavaná plocha: cca 4.5 m2
Max. veľkost transformátora: do 630 kVA
Celkový objem železobetónovej-olejovej vane:
cca 0,55 m3 (1,7 x 1,3 x 0,25 m)
VN-rozvádzač: kompaktný (max. 3 polia)
NN-rozvádzač: 8 ks poistkových odpínačov do 400 A
2 kusy dvojkrídlových, celohliníkových dverí (1140 x 1140 mm) s vetracou mrežou v hornej časti,
s cylindrickým zámkom
1 kus celohliníkových dverí (760 x 1140 mm)
s vetracou mrežou po celej ploche dverí (na dverách transformátorovej časti a rozv. nn), s cylindrickým zámkom.
