Trafostanica EH8 var.B
Trafostanica
EH8 var.B
Nízka, kompaktná, polozapustená transformačná stanica obsluhovateľná z vonkajšej strany. Železobetónový skelet.
Montáž alebo výmenu prístrojovej časti trafostanice je možné realizovať po zdvihnutí odnímateľnej strechy autožeriavom.

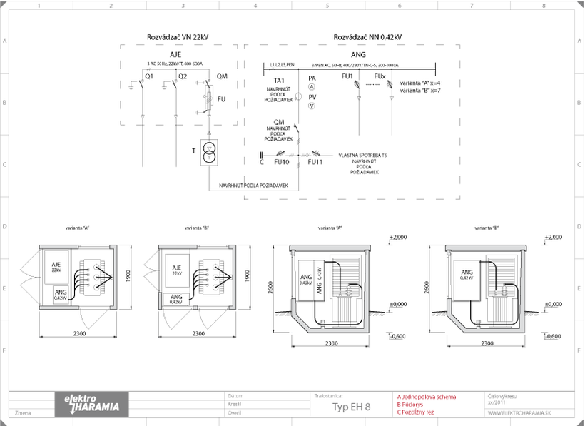
Základné technické údaje
Vonkajšia dĺžka: 2.300 mm
Vonkajšia šírka: 1.900 mm
Výška (od okolitého terénu): cca 2.000 mm
Hĺbka zapustenia do zeme: 600 mm
Celková výška: 2.600 mm
Celková váha (bez prístrojov): cca 7.5 t
Vnútorný objem: cca 8.4 m3
Zastavaná plocha: cca 4.37 m2
Max. veľkost transformátora: do 630 kVA
Celkový objem železobetónovej-olejovej vane:
cca 0,55 m3 (1,7 x 1,3 x 0,25 m)
VN-rozvádzač: kompaktný (max. 3 polia)
NN-rozvádzač: 4 ks poistkových odpínačov do 400 A
(variant A), 7 ks poistkových odpínačov do 400 A (variant B)
1 kus dvojkrídlových, celohliníkových dverí (1540 x 1140 mm) s vetracou mrežou v hornej časti,
s cylindrickým zámkom
1 kus (variant A) a 2 ks (variant B) celohliníkových dverí (760 x 1140 mm) s vetracou mrežou po celej ploche dverí (na dverách transformátorovej časti a rozv. NN), s cylindrickým zámkom
