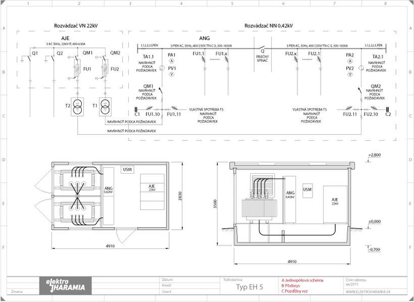
Trafostanica EH5
Druhá najväčšia nadzemná transformačná stanica obsluhovateľná z vnútornej strany. Železobetónový skelet.
Montáž alebo výmenu prístrojovej časti trafostanice je možné realizovať cez vstupné dvere alebo po zdvihnutí odnímateľnej strechy autožeriavom.

Základné technické údaje
Vonkajšia dĺžka: 4.910 mm
Vonkajšia šírka: 2.830 mm
Výška (od okolitého terénu): cca 2.800 mm
Hĺbka zapustenia do zeme: 700 mm
Celková výška: 3.500 mm
Celková váha (bez prístrojov): cca 22.5 t
Vnútorný objem: cca 28.40 m3
Zastavaná plocha: cca 14 m2
Max. veľkost transformátora: do 2 x 1250 kVA, (2 x 1600 kVA)
Celkový objem železobetónovej-olejovej vane:
cca 2 x 1,77 m3 (1,29 x 1,96 x 0,7 m)
VN-rozvádzač: modulárny, kompaktný
NN-rozvádzač: podľa požiadaviek zákazníka
2 kusy celohliníkových dverí (1000 x 2000 mm)
s vetracou mrežou v dolnej a hornej časti, s cylindrickým zámkom
1 kus celohliníkových dverí (800 x 2000 mm),
s cylindrickým zámkom
