Trafostanica EH1.A
Väčšia nadzemná transformačná stanica obsluhovateľná z vnútornej strany. Železobetónový skelet. Montáž alebo výmenu prístrojovej časti trafostanice je možné realizovať cez vstupné dvere alebo po zdvihnutí odnímateľnej strechy autožeriavom.

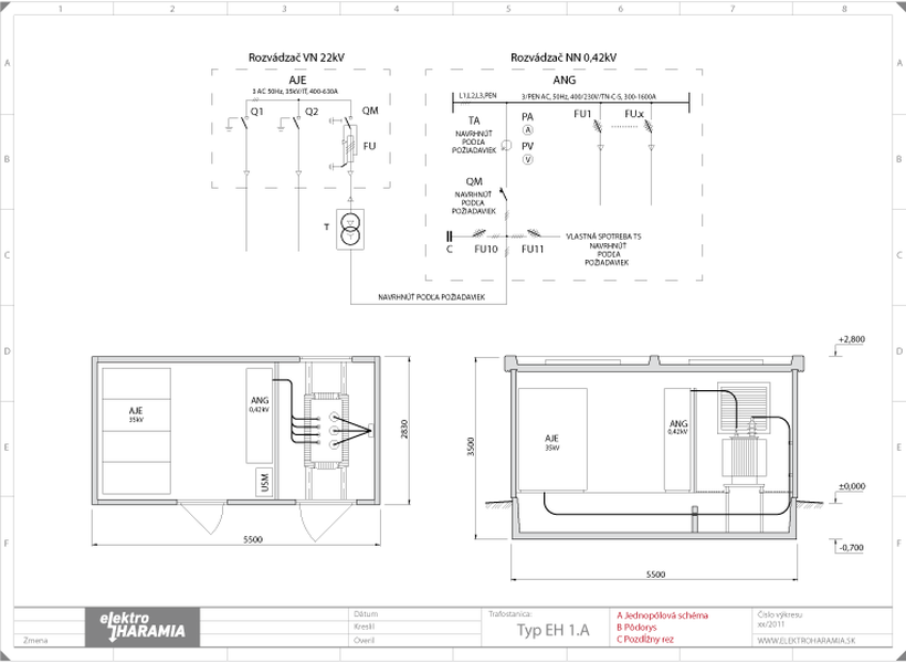
Základné technické údaje
Vonkajšia dĺžka: 5.500 mm
Vonkajšia šírka: 2.830 mm
Výška (od okolitého terénu): cca 2.800 mm
Hĺbka zapustenia do zeme: 700 mm
Celková výška: 3.500 mm
Celková váha (bez prístrojov): cca 25 t
Vnútorný objem: cca 32 m3
Zastavaná plocha: cca 15.5 m2
Max. veľkost transformátora: do 1250 kVA, (1600 kVA)
Celkový objem železobetónovej-olejovej vane:
cca 3,15 m3 (1,75 × 2,575 × 0,7 m)
VN-rozvádzač: modulárny, kompaktný
NN-rozvádzač: podľa požiadaviek zákazníka
1 kus celohliníkových dverí (1000 x 2000 mm)
s vetracou mrežou v dolnej časti, (na dverách
transformátorovej časti), s cylindrickým zámkom
1 kus celohliníkových dverí (800 x 2000 mm)
